Vinhomes Central Park là một thành phố thu nhỏ giữa lòng Sài Gòn. Dự án rộng 14ha, trải dài bên bờ sông Sài Gòn gồm các loại hình công trình như căn hộ chung cư, shophouse, biệt thự, trung tâm thương mại, khu văn phòng, khách sạn, bệnh viện, trường học, công viên và bến du thuyền. Dự án hứa hẹn tạo dựng những giá trị đích thực của cuộc sống, xứng tầm khu đô thị hiện đại & cao cấp bậc nhất Việt Nam. Cùng Minh Tuấn Land tìm hiểu chi tiết về phân khu The Central Vinhomes Central Park trong nội dung bài viết dưới đây.

Tổng quan phân khu The Central Vinhomes Central Park
Vinhomes Central Park là tổ hợp căn hộ cao cấp, biệt thự, trung tâm thương mại và công viên cây xanh nằm tại khu Tân Cảng TP.HCM. Phân khu sở hữu mặt tiền trải dài hơn 1 km bên sông Sài Gòn, cùng những tiện ích dịch vụ đẳng cấp 5 sao.
- Tên dự án: Vinhomes Central Park
- Đơn vị phát triển: Tập đoàn Vingroup
- Mật độ xây dựng toàn khu: 18,6%
- Vị trí dự án: 720A Điện Biên Phủ, p.22, q. Bình Thạnh, TP. Hồ Chí Minh.
- Quy mô phân khu: Gồm 3 toà: Central 1 – 38 tầng, Central 2 – 47 tầng và Central 3 – 47 tầng
- Loại hình sản phẩm: Căn hộ chung cư, penthouse, shophouse, biệt thự (the villas), sky villa
- Số phòng ngủ: 1,2,3,4phòng ngủ (PN)
- Pháp lý: Sổ hồng
- Thời gian khởi công: Năm 2014
- Thời gian bàn giao: Năm 2018
Giá bán căn hộ The Central Vinhomes Central Park
Hiện tại giá bán căn hộ the Central Vinhomes Central Park được bán với mức giá như sau:
- 1 phòng ngủ 36m2 – 54m2 Từ 2.95 tỷ
- 2 phòng ngủ 68m2 – 90m2 Từ 3.95 tỷ
- 3 phòng ngủ 94m2 – 135m2 Từ 6.8 tỷ
- 4 phòng ngủ 140m2 – 187m2 Từ 9.8 tỷ
- Penthouse/Shophouse 200m2 – 405m2 Từ 20 tỷ
Giá bán chưa bao gồm VAT và mức giá Minh Tuấn Land đưa ra chỉ là mức giá tham khảo. Giá bán có thể thay đổi theo từng thời điểm và vị trí khác nhau. Để biết chính xác giá bán của căn hộ thuộc phân khu Central Vinhomes Central Park, quý khách hãy liên hệ trực tiếp đến phòng kinh doanh của Minh Tuấn Land theo số hotline 0938.322.336 để được tư vấn cụ thể nhất.
Tiến độ phân khu The Central Vinhomes Central Park
Năm 2014, dự án khu đô thị Vinhomes Central Park được chủ đầu tư VinGroup khởi công xây dựng với tổng kinh phí lên đến 30.000 tỷ đồng. Và thời gian sau 3 năm xây dựng đến năm 2017 dự án đã chính thức được chủ đầu tư bắt đầu bàn giao ra thị trường trao tay khách hàng những sản phẩm căn hộ vô cùng chất lượng.
Tiến độ the Central Vinhomes Central Park hiện đã hoàn thiện:
- The Central 01 đã hoàn thiện và bàn giao: cao 38 tầng gồm 353 căn, 8 tháng máy;
- The Central 02 đã hoàn thiện và bàn giao: cao 47 tầng gồm 569 căn, 12 tháng máy;
- The Central 03 đã hoàn thiện và bàn giao: cao 47 tầng gồm 526 căn, gồm 12 tháng máy.
Đến thời điểm hiện tại trong năm 2021, dự án đã được đưa vào vận hành gần 4 năm. Các hạng mục như Trường học liên cấp Vinschool, Bệnh viện đa khoa quốc tế Vinmec, Bến du thuyền sang trọng hay Khu trung tâm thương mại Vincom Center và tòa Landmark 81 cao nhất tại Việt Nam hiện nay,…tất cả đều đã hoàn thiện và đưa vào vận hành, được đảm bảo về cơ sở vật chất lẫn hạ tầng hiện đại, chất lượng.
Dưới đây là một số hình ảnh thực tế của phân khu the Central Vinhomes Central Park:



THÔNG TIN LIÊN QUAN
- Giá bán & Cho thuê căn hộ Sunwah Pearl
Vị trí phân khu The Central Vinhomes Central Park
Phân khu The Central nằm ở cuối dự án Vinhomes Central Park và có vị trí sát với trường quốc tế WellSpring. Nằm cạnh đoạn đầu công viên Central Park và Layout Central 1 Vinhomes Central Park lại có diện tích rộng và không có góc chết. Các tòa cao ốc sở hữu tầm nhìn hướng ra sông Sài Gòn và bao quát toàn cảnh thành phố. Cụ thể:
- Hướng Đông: Trực diện sông Sài Gòn, Công viên.
- Hướng Tây: Bệnh viện Vinmec, trường học, đường Nguyễn Hữu Cảnh
- Hướng Nam: Quần thể The Park, Quận 1
- Hướng Bắc: LandMark 81, Khu biệt thự Vinhomes, Quận Bình Thạnh

The Central Vinhomes Central Park nằm ngay khu Tân Cảng, có mặt tiền trải dài hơn 1km ven bờ sông Sài Gòn trong lành, thơ mộng. Vị trí này không chỉ giúp gia tăng khả năng kết nối với trung tâm thành phố, các khu vực lân cận bằng đường bộ – đường sắt- đường thủy và đặc biệt chính là các tuyến Metro hiện đại.
Từ vị trí của phân khu dự án, cư dân dễ dàng tiếp cận với các khu vực trọng điểm chỉ trong khoảng thời gian ngắn:
- Chỉ cần 2 phút từ dự án tới tuyến tàu điện Metro Bến Thành – Suối Tiên
- Khoảng 3 phút tới với KĐT Thủ Thiêm – quận 2
- Tầm 7 phút tới trung tâm tới chợ Bến Thành
- 5 phút đến khu đô thị mới Quận 2
Mặt bằng phân khu The Central Vinhomes Central Park
Đại đô thị Vinhomes Central Park phường 22, quận Bình Thạnh (Tân Cảng) được chia làm nhiều phân khu. Trong đó, phân khu căn hộ được chia làm 4 khu gồm: The Central – The Park – The Landmark.

Trong đó, phân khu The Central Vinhomes Central Park gồm 3 toà:
- Central 1: 38 tầng – 353 căn hộ
- Central 2: 47 tầng – 569 căn hộ
- Central 3: 47 tầng – 525 căn hộ
The Central 1
Tòa Central 1 cao 38 tầng với tổng cộng 353 căn hộ.
Mặt bằng điển hình The Central 1

Central 1 là tòa căn hộ đầu tiên tại dự án Vinhomes Central Park. Nằm gần với sông Sài Gòn, hầu hết các căn hộ trong tòa nhà này đều có view đẹp sông. Được thiết kế như sau:
- Số tầng: 38 tầng
- Số căn hộ: 353 căn hộ (chưa bao gồm penthouse).
- Số lượng thang: 8 thang máy và 3 thang bộ.
- Bao gồm 2 block tòa nhà với tổng 10 căn hộ/ sàn.
- Chiều rộng hành lang sảnh thang máy: 2,6 m
Thiết kế căn hộ The Central 1
Thiết kế căn hộ The Central có diện tích từ 52 – 154m2 bao gồm các sản phẩm căn hộ 1Pn, 2Pn, 3Pn, 3Pn+.






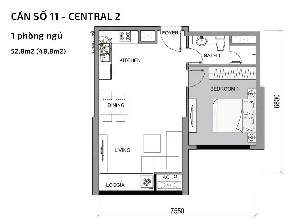
The Central 2
Tòa Central 2 cao 47 tầng với tổng cộng 569 căn hộ.
Mặt bằng điển hình The Central 2

Central 2 nằm ở vị trí gần sông Sài Gòn, view thông thoáng và yên tĩnh. Giáp với trường Wellspring, tòa Park 1 và The Central 1. Hầu hết các căn hộ tại đây đều có thể view nhìn sông, những căn ở gốc hướng về Quận 1 rất đẹp.
- Tòa nhà The Central 2 cao 47 tầng.
- Hơn 560 căn hộ gồm căn hộ ở từ 1 đến 4 phòng ngủ, căn hộ Office. (Chưa kể những căn Penthouse).
- 12 thang máy và 4 thang bộ thoát hiểm.
- 13 căn hộ/sàn.
- Hành lang sảnh thang máy rộng 2,7m.
Thiết kế căn hộ The Central 2









The Central 3
Tòa Central 3 cao 47 tầng với tổng cộng 525 căn hộ.
Mặt bằng điển hình The Central 3

Tòa Central 3 Vinhomes Central Park có vị trí gần trường học Vinschool, một mặt hướng về thành phố ( đường Nguyễn Hữu Cảnh view trung tâm quận 1, và quận 3). Mặt còn lại hướng về sông Sài Gòn.
- Tòa nhà The Central 3 cao 47 tầng.
- Hơn 525 căn hộ, gồm các căn từ 1 đến 4 phòng ngủ, căn hộ Officetel. (Chưa kể những căn Penthouse).
- 10 thang máy và 3 thang bộ thoát hiểm.
- Tòa nhà chia làm 2 block, với tổng 12 căn hộ / sàn.
- Hành lang sảnh thang máy rộng 2,7 m.
Thiết kế căn hộ The Central 3



Tiện ích phân khu The Central Vinhomes Central Park
Tiện ích Vinhomes Central Park kiến tạo dấu ấn riêng biệt với quy mô hoành tráng Phân khu The Central Vinhomes Central Park tọa lạc tại vị trí trung tâm của dự án Vinhomes Central Park nên được hưởng các tiện ích đa dạng, đáp ứng nhu cầu của mọi cư dân. Cụ thể:
- Trường liên cấp Vinschool Central Park
- Bệnh viện đa khoa Quốc tế Vinmec Central Park
- Bến du thuyền đẳng cấp 5 sao
- Sân băng trong nhà
- VINKE (khu vui chơi giáo dụng trẻ em)
- Rạp chiếu phim
- Bể bơi tại tất cả các tòa nhà căn hộ
- Hệ thống sân tập thể thao ngoài trời (Tennis, cầu lông.v.v…)
- Sảnh Lounge
- Khu Club – House 5 sao, phòng tập Gym, nhà sinh hoạt cộng đồng
- Khu vui chơi trẻ em ngoài trời, mini Golf-tập Putting, dịch vụ chăm sóc thú cưng
- …
Chủ đầu tư VinGroup

Nhắc đến cái tên Vingroup không ai là không biết đến. Đây là tập đoàn lớn nhất Việt Nam với quy mô phát triển đa ngành tập trung vào 3 lĩnh vực chính: Bất động sản, công nghệ, công nghiệp. 2 thương hiệu gắn liền với Vingoup từ khi bắt đầu chính là bất động sản Vinhomes và Vinpearl – du lịch, vui chơi, nghỉ dưỡng.
Vinhomes, Vincom, Vinmec, Vinpearl, Vinfast, Vinschool. Vinuni,…là các thương hiệu nổi bật của chủ đầu tư Vingroup. Tại thành phố Hồ Chí Minh, chủ đầu tư Vingroup đã phát triển những dự án bất động sản vô cùng đẳng cấp, gồm: Vinhomes Central Park, Vinhomes Golden River (Bason) và Vinhomes Grand Park. Mỗi sản phẩm của Vingroup đều mang đến cho cư dân sự hài lòng nhất với tiêu chuẩn sống “All – in one” đồng bộ về chất lượng, dịch vụ cũng như đa dạng tiện ích nội khu cùng với chất lượng sống trong lành, đảm bảo sức khỏe và an ninh cư dân được ưu tiên hàng đầu.
Một số câu hỏi liên quan đến phân khu The Central Vinhomes Central Park
Phân khu The Central Vinhomes Central Park bao gồm những loại hình phát triển nào?
- Căn hộ 1 phòng ngủ – Diện tích từ 36m2 – 54m2
- Căn hộ 2 phòng ngủ – Diện tích 68m2 – 90m2
- Căn hộ 3 phòng ngủ – Diện tích 94m2 – 135m2
- Căn hộ 4 phòng ngủ – Diện tích 140m2 – 187m2
- Căn hộ Penthouse/Shophouse – Diện tích 200m2 – 405m2
- Biệt thự ( the villas) – Diện tích 223m2 -500m2
Mỗi Block gồm bao nhiêu tầng? Có bao nhiêu thang máy?
- The Central 01 cao 38 tầng gồm 353 căn, 8 tháng máy;
- The Central 02 cao 47 tầng gồm 569 căn, 12 tháng máy;
- The Central 03 cao 47 tầng gồm 526 căn, gồm 12 tháng máy.
Trên đây là những thông tin mới nhất về phân khu The Central Vinhomes Central Park. Hy vọng bài viết của chung tôi sẽ giúp quý khách có cái nhìn rõ hơn về dự án để có thể đưa ra được quyết định chính xác cho mình. Để tư vấn về giá bán và chính sách bán hàng của dự án Vinhomes Central Park, quý khách vui lòng gọi đến phòng kinh doanh qua số hotline 0938.322.336 để được tư vấn cụ thể nhất. Minh Tuấn Land sẽ giúp quý khách lựa chọn cho mình được những căn hộ ưng ý nhất, tiềm năng tăng giá trong tương lai cao nhất.
Bài viết cùng chuyên mục
